THE owners of a railway company in the Lea intend to demolish the existing engineering buildings and associated offices and build 13 new homes on the site.
The family behind Alan Keef Limited, Alan Keef, Patrick Keef and Alice Basey have submitted an application to Herefordshire planners for the proposed scheme that will retain the two existing detached dwellings at the rear of the site.
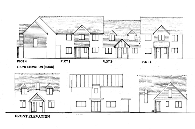
The application seeks the construction of 10 two storey dwellings comprising a mix of one two-bed property, a terrace made up of three homes with three bedrooms each; eight three-bedroomed detached dwellings and one four-bedroomed home which will be accessed by a new estate road.
The Lea Line property is owned by the Keef / Basey families with the railway engineering company Alan Keef Limited, a highly specialist narrow gauge railway engineering company, having occupied the site, under a lease agreement, since 1986.
The company established itself in the village in 1985 and has been the sole occupant of the Lea Line building, which had originally been a warehouse, since1986.
Some ten years ago the company expanded and has been operating out of two additional properties in Ross-on-Wye and Mitcheldean.
The company states that the practical aspects of operating from three sites is no longer sustainable and it has taken the decision to consolidate back to one site following the impending expiration of the Lea Line property lease.
The company directors, as owners, plan to capitalise on the value of the existing site to fund a move for the engineering company and thereby secure the future of the business.
The county’s landscape officer advised that the layout of the development should reflect the historic route of the railway that ran through the site.
The Julie Joseph Planning Consultancy pointed out to Herefordshire Council that the area is a brownfield site, but it is located within the settlement of Lea and is not separated by open countryside.
Ms Joseph said: “The mix of housing is considered to reflect the need locally for a mix of housing types to enable the provision of existing residents to buy in the village and to expand their families thus protecting the facilities such as the school, the local shop etc and ensuring the future of the community.”
Comments on the application, number P252870/F can be made via Herefordshire Council’s planning portal until Thursday, December 4.
For more information about planning applications in your area visit publicnoticeportal.uk.





Comments
This article has no comments yet. Be the first to leave a comment.